Дом "Лисица" 137 м²

Цена: по запросу
  • Кол-во комнат
    4
  • Кол-во санузлов
    2
  • Балконы
    1
  • Террасы
    1
Дом для небольшой семьи, которая ценит обширное пространство для жизни.
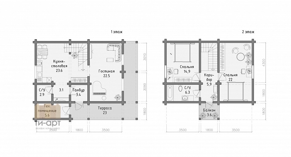
На первом этаже расположены кухня-столовая и гостиная, а также санузел и техническое помещение с отдельным входом с улицы. Более 55 кв.м жилой площади первого этажа подарят настоящий комфорт проживания. Можно пригласить много гостей - и места хватит всем. Второй мансардный этаж отведён под две спальни, сопровожденных санузлом. Конечно, внимание падает на внушительных размеров террасу - здесь точно разгуляешься в обустройстве пространства: барбекю, печь, стол и и стулья, качель или шезлонги - выбор велик.
1/2 этажи
Что входит в эту цену?
Дом в «теплом контуре» + отделка фасада:
Наши Работы
    Вернуться к списку проектов
    Следующий проект