Дом "Киото" 191 м²

Цена: по запросу
  • Кол-во комнат
    3
  • Кол-во санузлов
    2
  • Балконы
    0
  • Террасы
    1
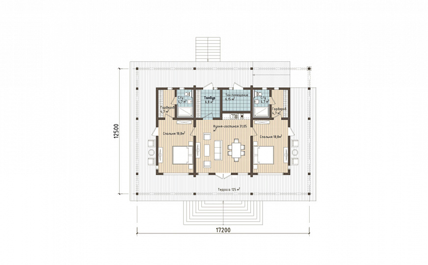
Этот дом представляет собой шедевр современной архитектуры. Зеркальные спальные комнаты расположены на противоположных концах дома и имеют собственные гардеробные и ванные комнаты, что обеспечивает полную приватность для жильцов. Просторная кухня-гостиная в центре дома станет идеальным местом для семейных вечеров и встреч с друзьями. В доме использован только высококачественный клееный брус, который обеспечивает не только эстетичный внешний вид, но и максимальную теплоизоляцию и долговечность. Натуральные материалы, использованные при строительстве, создают атмосферу уюта и комфорта, а просторные окна позволяют наслаждаться панорамным видом на окружающую природу.
1 этаж
Что входит в эту цену?
Дом в «теплом контуре» + отделка фасада:
Наши Работы
    Вернуться к списку проектов
    Следующий проект