Дом "Барс" 310 м²

Цена: по запросу
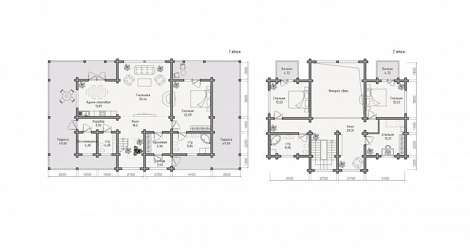
  • Кол-во комнат
    5
  • Кол-во санузлов
    3
  • Балконы
    2
  • Террасы
    2
Барс - это настоящий символ комфорта и уюта. Этот дом продуман до мелочей и готов позаботиться о каждом жильце. Просторный интерьер и светлая атмосфера помогут вам расслабиться и насладиться жизнью в окружении природы.
Дом имеет две террасы и два балкона, что позволяет наслаждаться видом на окружающую природу и уютно проводить время с семьей и друзьями. Большая кухня гостиная - это не только место, где можно приготовить и насладиться вкусной едой, но и место, где можно проводить время в приятной обстановке.
Дом также оборудован тремя санузлами и четырьмя спальнями, что позволяет разместить семью любого размера с максимальным комфортом. Благодаря продуманной планировке и эргономичному расположению комнат, каждый жилец будет иметь свое личное пространство и свободу передвижения.
Этот дом - прекрасный выбор для тех, кто ищет не только красивый, но и продуманный по дизайну и функциональности дом.

1/2 этажи
Что входит в эту цену?
Дом в «теплом контуре» + отделка фасада:
Наши Работы
    Вернуться к списку проектов
    Следующий проект