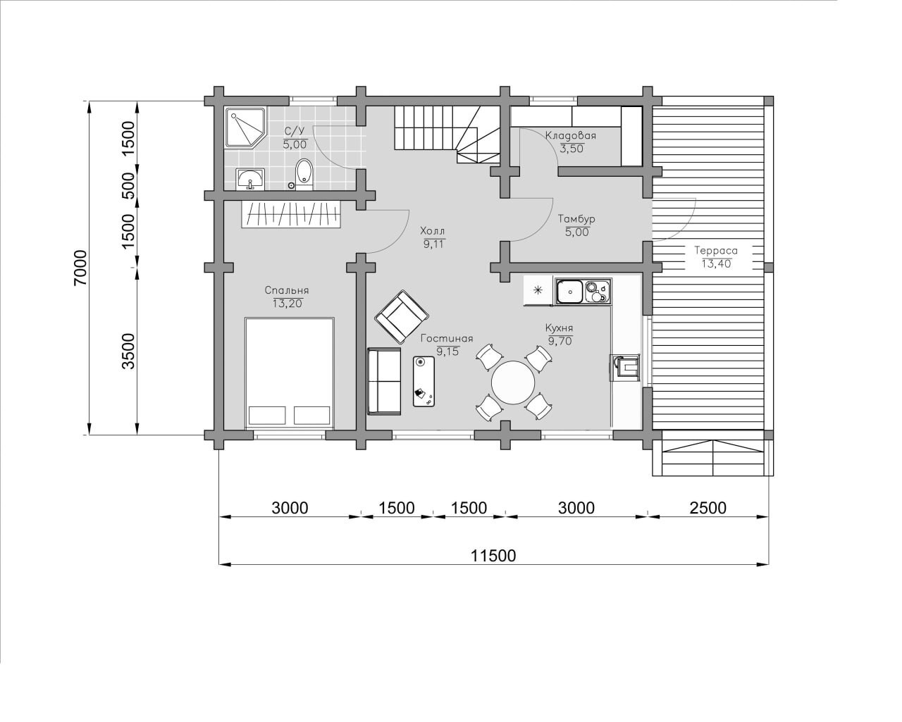
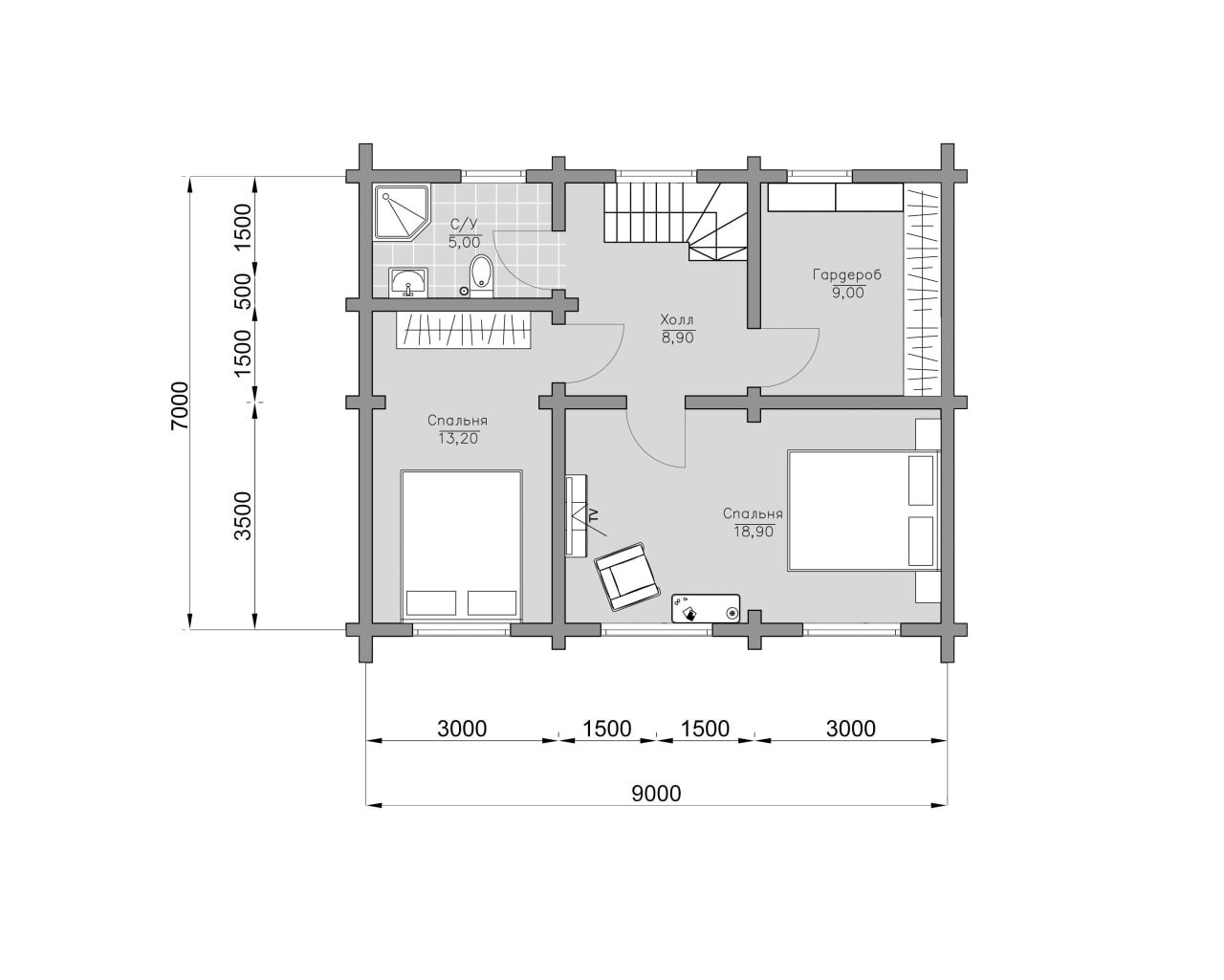
Дом "Южный" 125 м²

Цена: по запросу
  • Кол-во комнат
    4
  • Кол-во санузлов
    2
  • Балконы
    0
  • Террасы
    1
Отличный проект для загородной жизни в Крыму. Удобная планировка и лаконичный дизайн. В наше время ценится минимализм и грамотное использование жилого пространства. Эти параметры мы продумали и уже включили в наш проект. Здесь есть все необходимое для комфортной жизни: помимо двух хозяйских спален на втором этаже, вы можете принять гостей спальне на первом этаже, расположенной вблизи санузла на первом этаже. Уютная гостиная, совмещенная с кухней отлично подойдет для семейных посиделок и принятия пищи. Также предусмотрели отдельный гардероб, легко вмещающий все необходимы вещи. Ну и конечно уютная терраса для принятия солнечных ванн.
1/2 этажи
Что входит в эту цену?
Дом в «теплом контуре» + отделка фасада:
Наши Работы
    Вернуться к списку проектов
    Следующий проект